Mes favoris

Vous n'avez pas de favoris :(

Créez une alerte personnalisée Et recevez par mail les derniers biens correspondant à vos critères
Pour créer une alerte : connectez-vous ou créez un compte C'est par ici !

Ajouter aux favoris

10 photos

Appartement 3 pièces

Eybens (38320)

Réf. de l'annonce : HOR D0064-GD37 TEMPO EYBENS

67,08 m2

1073 €/mois c.ccharges comprises

Appartement HORIZON T3 D0064+gge37 -TEMPO CLOS COQUET EYBENS

Surface : 67,08 m2

Provisions pour charges (régularisation annuelle) : 60 €/mois

Loyer hors charges : 1013 €/mois

Loyer : 1073 €/mois c.c

Frais d'agence : 872,04 €

Dont état des lieux : 201,24 €

Dépôt de garantie : 1013 €

Non meublé : Oui

Ascenseur : Oui

Bilan énergétique

59 B 102 G Plus d'informations
Consommations énergétiques Logement économe
  • A<= 50
  • B51 à 9059
  • C91 à 150
  • D151 à 230
  • E231 à 330
  • F331 à 450
  • G> 450
Logement énergivore en kWhEP / m².an
Emissions de gaz à effet de serre (GES) Faible émission de GES
  • A<= 5
  • B6 à 10
  • C11 à 20
  • D21 à 35
  • E36 à 55
  • F56 à 80
  • G> 80102
Forte émission de GES en kgeqCO2 / m².an
Moins d'informations

Système de chauffage : Individuel Gaz

Production eau froide : individuelle

Production eau chaude : individuelle

Balcon /Terrasse : Oui

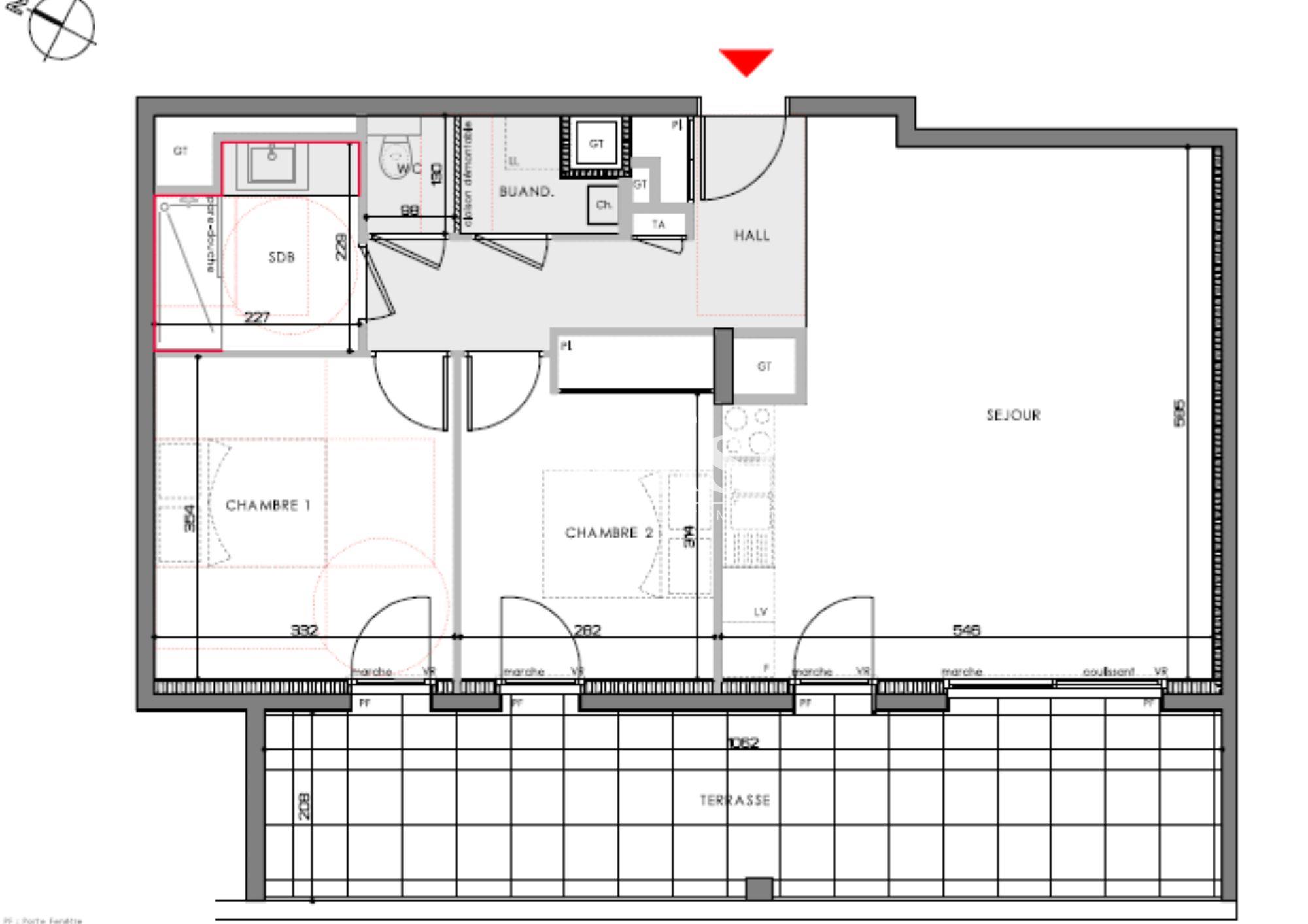
 Eybens, au sein de la résidence de 2024 « LE TEMPO », au cœur de la Ville et à proximité immédiate des commerces et de toutes commodités, nous vous proposons de venir découvrir cet agréable T3 de 67.08 m² avec garage en sous-sol.

Situé au rez-de-chaussée sur élevé, l'appartement se compose d'un hall avec placard desservant une pièce de vie d'environ 30m2 donnant directement accès à une terrasse de 21m2. Vous bénéficierez de deux belles chambres dont une avec placard aménagé. Une salle d'eau et un WC indépendant complètent la location.
 
LES PLUS : buanderie, cuisine meublé et équipée. L'appartement est équipé de volets roulants électrique, gestion du chauffage individuel gaz par thermostat.
  
Le chauffage et l'eau chaude sont individuels au gaz. L'eau froide est individuelle.
 
Zone soumise à encadrement des loyers
 
Loyer charges comprises : 1073.00€
 
Loyer de base : 784.84 €
Loyer de référence majoré : 939.12 €
 
Loyer mensuel : 938.30 €
Complément de loyer : 75.00 € (garage)
Provisions sur charges locatives : 55.00€
 
Dépôt de garantie : 1013.00 
 
Honoraires charge locataire : 872.04 € dont 201.24 € pour l'état des lieux
 
Montant estimé des dépenses annuelles d'énergie pour un usage standard : entre 379.00 et 513.00 €TTC/an Date de référence des prix de l'énergie pour établir cette estimation : 01/01/2021
 
Les informations sur les risques auxquels ce bien est exposé sont disponibles sur le site Géorisques : géorisques.gouv.fr.
 
La visite du bien pourra être effectuée qu'après présentation de votre dossier de candidature complet. 

intéressé ?

Contacter un conseiller